Southern Style House Plans

Southern Style House Plans

Southern living or southern style house plans similar to plantation homes.

Craftsman Style

¶ A little examination into the merits of this southern living design, as illustrated by the pictures of elevation and ground-plans, will satisfy any one that our title, if not entirely elegant, has not been chosen without some attention to the correctness of its application. While we are well aware that it is next to impossible to prepare plans embracing all the conditions made imperative by a great diversity of climate, we are not less sensible that compromises can be effected, greatly extending the application of a given plan with but a limited amount of local modifications. To the Southern projector who may conceive a partiality for the ideas here illustrated, we would say, give outside blinds and umbrage to all the windows, and build a detached kitchen, and you have a complete Southern house for a family of moderate size.

¶ The through hall, which effectually cuts off the dining room from the parlor and library, is a very liberal arrangement for a house of this size; and indeed this circumstance, combined with its peculiar application in the plan before us, is the basis of the compromise here intended between the varieties of climate.

Southern Style Country House
Southern Style Country House

¶ An excellent expedient, and favorable to privacy and good ventilation, is to place a rising sash or headlight over each door, which can be opened or closed by a cord. By doing this, the top of the door-dress ings are kept in a line with those of the windows, without affecting the proportions of either feature.

Southern Style House Interior

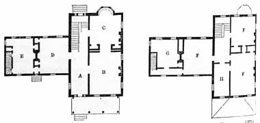
¶ The hall A, picture 80, entered from a neat front veranda, is 9 feet wide, and contains the principal staircase. The parlor B is 16 by 22 feet. By opening the sliding doors, the eye is greeted by the pleasing view of an octagonal bay window; this is an appendage to the room C, a room 16 feet square, which would make a delightful sitting-room or library, according to the choice of the occupants. The dining room D has two snug, little china closets. The kitchen E, 14 by 10 feet, has a closet and flight of private stairs. On the second floor, picture 81, we find three good bedrooms, F, provided with closets, and two smaller ones, H and G, the latter entered from the private stairs.

Floor Layout
Floor Layout

Plans

¶ Brick, stone, or wood are equally applicable to construction of this house. If ordinary bricks or rubble-stone are used, it should be stuccoed; if built of wood, the framing should be boarded in the horizontal manner, the angles or corner posts being cased with vertical strips 5 or 6 inches wide, against which the abutting joint of the weather boarding is made. A roof of shingles or slate is equally admissible, due provision having been made in the framing of the rafters for the greater weight of the latter. The execution of the joinery with well selected and seasoned wood, say white pine or cypress doors and dressings, yellow pine stairs with walnut hand-rail, etc., would be a satisfactory mode of internal finish.

Next Page: Gothic Revival Style House.



This is Southern Style House Plans.


www.craftsman-style.info is Copyright © 2005-23 by International Styles